帶壓堵漏致2死1傷!云南某發電有限公司“9·14”人身傷亡事故調查報告
一、基本情況
1.事故簡稱:云南某發電有限公司“9·14”人身傷亡事故。
2.時間:2021 年 9 月 14 日 15 時 19 分。
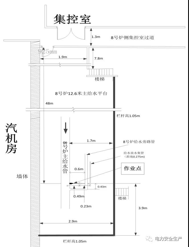
3.地點:8 號鍋爐 12.6米主給水平臺。
4.事故類別:灼燙、高處墜落事故。
5.傷亡情況:先后死亡2 人,燙傷 1 人。
6.事故等級:一般人身傷亡事故。
7.事故責任:主要責任事故。
8.人員信息:

9.調查原則及依據:《中華人民共和國安全生產法》(中華人民共和國主席令第88 號)、《生產安全事故報告和調查處理條例》(中華人民共和國國務院令第493 號)、《集團生產安全事故內部調查處理規定》
二、相關合同情況
云南某公司未提供相關外委合同,未與云南某電力技術咨詢有限公司簽訂安全協議,云南某公司按照《云南公司非招標采購實施辦法(第二版)》第六十三條規定,提供了2021 年 8 月 10 日審批的《即時結清零星項目采購審批表》(項目名稱:8號爐主給水電動門后放水管在線修復,預算金額15000 元,項目編號:ZC-2021-055)。
三、事故概況
(一)系統概況
云南某公司總裝機2 臺 300MW(CFB)凝汽式燃煤發電機組,鍋爐為上海鍋爐廠制造的SG-1025/17.4-M801 型亞臨界中間再熱、單鍋筒自然循環鍋爐。采用島式半露天布置、全鋼構
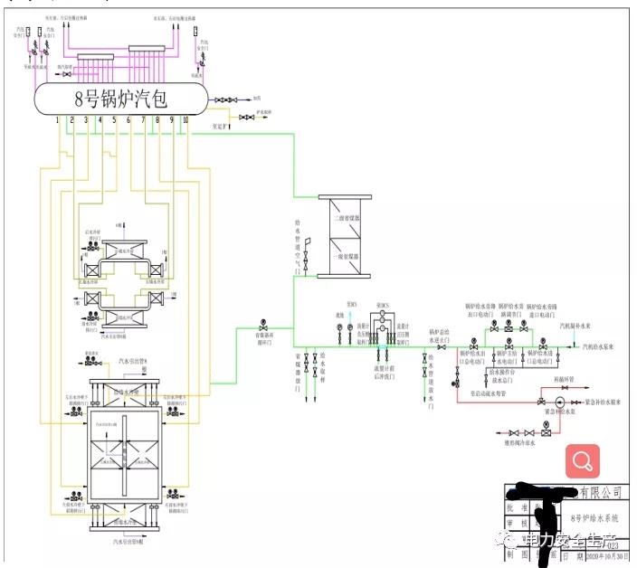
架、采用支吊結合的固定方式,鍋爐采用單鍋筒自然循環、集中下降管、平衡通風、絕熱式旋風氣固分離器、循環流化床燃燒方式。鍋爐主給水由兩臺汽動給水泵、一臺電動給水泵經汽機高加、鍋爐12.6 米主給水平臺管道向鍋爐省煤器供水,布置于鍋爐后島0 米的緊急補給水泵作為事故備用直接向省煤器供水。2015年至 2019 年完成供熱改造,單臺機組供熱能力300 噸/小時。給水管道設計壓力26.53MPa,設計溫度282.7℃,管道規格Di355.6×25.4mm,材質 WB36;放水管規格Φ38×5mm、材質 20g,放水管加強管座材質20g。
系統圖如下:

(二)近期檢修情況
2018 年7 月 9 日,云南某公司設備維護部開展檢修8 號機組 C 修,期間對主給水疏放水管共檢測24 點,其中最薄1.2mm,對壁厚低于3.5mm 的 5 個管段進行了更換處理,其中,12.6米層主給水電動門后疏放水管減薄彎頭(本次事故泄漏點)采取的是用機制彎頭進行更換。2018年 08 月 9 日對更換的焊口進行射線探傷檢驗合格(包括本次缺陷泄漏點,焊縫編號K3,詳見附件 8),材質復核合格。
(三)事故發生經過
1.第一次帶壓堵漏2021年 7 月 10 日-8 月 8 日完成 8 號機組 C 修,8 月 9日機組并網。8 月 10 日,8 號機組負荷151MW,中排供熱流量0t/h,主蒸汽流量440t/h,鍋爐給水壓力9.9MPa,給水流量411t/h,給水溫度250℃。
8 月 10 日 6 時 25 分,運行值班員現場巡檢時發現8 號爐主給水電動門后放水管處有泄漏現象,匯報當班值長陳某某,值長在公司生產微信群中發布缺陷通知。
8 月 10 日 8 時左右,云南某電廠生產技術部副主任(主持工作)趙某、副主任張某某、金屬專責工程師余某某(死者)及設備檢修部鍋爐專責黃某等相關人員到現場查看,確認為主給水電動門后放水管第一道焊縫區域輕微泄漏。期間,云南某電廠分管安全生產副總經理、總工程師分別到現場查看過泄漏情況,趙某將泄漏情況及請第三方(云南某電力技術咨詢有限公司)到現場檢查處理的工作安排匯報總工程師。趙某安排余某某電話聯系云南某電力技術咨詢有限公司法人劉某某盡快派人到廠檢查,并將現場漏點圖片發給劉某某,與之溝通了初步處理方案。10日上午生技部編制完成了《8號爐鍋爐主給水電動門后放水管泄漏在線修復方案》,編制人為張某某,趙某審核,總工程師中午簽發。
10 日上午,余某某聯系黃某安排辦理工作票。10時 25分,鍋爐檢修班辦理完成“8號爐鍋爐主給水電動門后放水管泄漏處理”工作票,工作票編號3762RJP820210810009,工作票簽發人黃某、許可人保某某(運行部集控單元長)、工作負責人王某某(設備檢修部鍋爐班),工作班成員為云南某電力技術咨詢有限公司羅某某和王某。
13 時左右,由余某某將云南某電力技術咨詢有限公司羅某某、王某帶入廠內、到現場查看漏點。
13 時 50 分左右,工作票負責人及相關管理人員在集控室開展了安全技術交底。運行人員將8 號機組負荷由150MW降至 135MW,降給水壓力由9.9MPa 降至8.5MPa 后,羅某某、王某在現場開展捻壓堵漏處理。
14 時 07 分左右,捻壓工作結束,目測漏點已不泄漏。隨后余某某與羅某某商討固定方案,委托外部專業單位加工夾具。
23 時 10 分左右,加工好的夾具到廠。
23 時 50 分左右,羅某某現場完成夾具安裝、打膠加固及封堵。開元公司觀察運行24 小時無泄漏,恢復保溫。
2.第二次帶壓堵漏9月 12 日 14 時 10 分,8 號機組帶208MW 電負荷運行,中排供熱流量233t/h,主蒸汽流量804t/h,鍋爐給水壓力17.89MPa,給水流量740t/h,給水溫度280℃。運行值班人員現場巡檢時發現主給水電動門后放水管帶壓堵漏處輕微漏氣,匯報值長,值長在公司生產微信群中發布缺陷通知。
后設備檢修部鍋爐檢修班拆除泄漏點位置保溫。
9 月 12 日 14 時 40 分,趙某和云南某公司運行部主任李自林一起到現場查看,確認上次堵漏夾具處有輕微泄漏。
隨后趙某電話匯報總工程師,說明堵漏位置再次泄漏,處理意見為通知云南某電力技術咨詢有限公司來廠檢查,看能否再次處理。
9 月 12 日 14 時 57 分,趙某將泄漏情況視頻發到云南某公司生產微信群,并電話通知余某某(周日休息,不在現場)聯系云南某電力技術咨詢有限公司到現場檢查處理,余某某聯系后回復人員目前不在昆明,預計9 月 14 日到場。現場做好隔離警告措施后觀察運行,等待云南某電力技術咨詢有限公司人員到到場處理。
9 月 14 日 9 時左右,生技部編制完成了“8號爐鍋爐主給水電動門后放水管泄漏在線修復方案”,方案簽字人員為編寫張某某,審核趙某,批準總工程師,10時左右設備檢修部黃某收到方案復印件。
9 月 14 日 10 時 14 分左右,余某某通知黃某辦理本次漏點處理的工作票。黃某將工作任務安排到鍋爐檢修班,班長楊某某在ERP 系統進行提票。
13 時 20 分左右,云南某電力技術咨詢有限公司人員羅某某和王某到達開元公司,未辦理相關入廠手續,由余某某直接帶入現場查看泄漏情況,進行堵漏工作準備,隨后到主控室等待辦理工作票手續。
14 時,運行人員交接班,8號機組運行,負荷205MW,中排供熱流量233t/h,主蒸汽流量804t/h,鍋爐給水壓力17.85MPa,給水流量740t/h,給水溫度280℃。三值接班后值長羅某馬上組織辦理了“8號爐給水主路電動門后放水門管道在線修復”工作票,工作票編號3762RJP820210914009。
工作票簽發人黃某,許可人為運行部集控三值單元長黃某某,工作負責人為設備檢修部鍋爐本體班安全員、一類焊工A崗楊某某,工作成員為云南某電力技術咨詢有限公司羅某某和王某。相關人員辦理完工作票許可手續后,工作票負責人及相關管理人員總工程師、余某某在集控室進行了安全技術交底。
14 時 25 分左右,工作人員進入現場作業。工作班成員羅某某、王某準備完工器具后,在12.6 米主給水平臺漏點位置開始工作;余某某站在同一平臺漏點位置附近觀察;楊某某在主給水平臺對面84 號外置床過道位置監護。
15 時 19 分左右,運行人員在集控室及學習室內等聽到外邊有爆破聲。稍后,工作負責人楊某某跑到集控室向值長羅某報告:正在作業的主給水電動門后放水管漏點爆開,高溫高壓水汽大量噴出,現場水汽彌漫,主給水平臺上余某某等3 人情況不明。匯報完后,楊某某又跑回現場查看、搜尋。
15 時 20 分,集控室監盤人員發現主給水流量由743t/h快速下降至596t/h,汽包水位由-5mm降至-32mm且持續下降。
值長令鍋爐快速減負荷處置。
15:22 分,鍋爐給煤量由204t/h 減至 49t/h,汽包水位由-32mm快速降至-188mm。
15 時 24 分左右,聽到爆破聲后從學習室到現場查看的實習值長羅某劍、趙某飛等人看到作業人員羅某某(死者)從主給水平臺水汽中自行爬出,行動困難,迅即上前救援。
觀察羅某某露出工裝外的皮膚燙傷嚴重,意識尚清醒,能夠溝通表達,自述呼吸困難。羅某劍等人將羅某某扶至集控室門前過道處并放置到擔架上,集控室值班人員采用正壓呼吸器幫助羅某某緩和呼吸困難狀況。羅某劍等人返回現場繼續查尋,見到另一作業人員王某(傷者)從主給水平臺水汽中自行走出,意識正常,觀察主要是膝蓋以下燙傷,行走較困難。救援人員隨即將王某送至集控室觀察。值長電話通知公司醫務班人員到現場救治傷員,同時通知相關管理人員參與應急處置。
15 時 28 分左右,云南某公司總工程師及生產相關人員到達現場。在集控室向傷員查詢相關情況時,得知余某某可能還在主給水平臺上沒有脫困,立即組織人員到現場搜救。
15 時 32 分,公司醫務班醫護人員到達集控室救治羅某某和王某兩名傷員,之后公司安排專車送往云南某市926 醫院,途中約16 時 30 分將傷員轉移至相遇的救護車后繼續送至926醫院。
15 時 35 分,值長下令停爐。
15 時 36 分左右,實習值長羅某劍從鍋爐0 米向上觀察主給水平臺端頭欄桿處有人影,迅速跑回集控室報告,同時電話報告總工程師。
15 時 38 分左右,總工程師等人趕到鍋爐0 米查看,發現余某某已墜落在靠近汽機房外墻一側約1.7 米處地面,安全帽戴在頭上,系繩未脫落,殼體左前部已經破損,頭部左后腦有開放性傷口,觀察裸露肢體部分燙傷較嚴重,基本無意識,尚有呼吸,迅速將其轉移至附近安全區域,挪至擔架上。
15 時 44 分,公司醫務人員趕到0 米現場,立即將余某某送至公司醫務室進行急救。
16 時 40 分,醫院急救人員到達公司醫務室參與搶救。
17 時 00 分,926 醫院急救人員鑒定余某某已無生命體征,停止搶救。
(四)事故報告情況
9 月 14 日 15 時 45 分,向云南公司報告。
9 月 14 日 16 時 20 分,向集團公司報告。
9 月 14 日 16 時 21 分,向市應急管理局報告。
9 月 14 日 16 時 26 分,向國家能源局云南監管辦公室報告。
(五)事故應急救援及善后情況
事故發生后,云南某公司立即啟動應急預案,成立應急指揮機構,分工負責傷員救治、家屬安撫、現場保護、事故調查、信息上報、輿情管控等工作。接到報告后,云南公司領導當即分赴醫院看望傷員,到事故現場了解事故情況,布置事故現場應急救援工作;集團安全環保監察部、電力產業部相關領導及人員于9 月 15 日趕到現場,開展事故調查。
按照集團公司領導批示和工作要求,設置了云南公司、云南某公司兩級值班值守人員,周密安排死者善后事宜及家屬安撫,積極協調各地醫療資源,全力配合醫院開展傷員救治工作。9月 22 日 12 時 34 分,羅某某在醫院救治無效死亡。
截至目前,另一傷者王某傷情平穩,在院治療逐步恢復中。
(六)事故損失
事故造成云南某公司1 名員工死亡,云南某電力技術咨詢有限公司1 名人員送醫治療8 天后死亡,另 1人燙傷在治療中。
四、事故原因分析及認定
(一)相關情況確認
1.發生事故的主給水管道平臺標高12.6 米,寬度 2.9米,前端通過水泥平臺與集控室連接,側面距后端3.5 米通過鋼扶梯與鍋爐平臺連接。平臺上布置主給水管道及其旁路,主給水管道上安裝一臺電動截止閥及一臺電動調節閥,旁路上安裝一臺電動截止閥及一臺電動調節閥,主給水管道上安裝三條放水管,匯聚一路管道排放至啟動疏水母管,放水管各安裝一臺手動截止閥,主給水管道設三個滑動支架,旁路設一臺彈簧支架和一個滑動支架。主給水管道距平臺面
高度 0.43 米。(示意圖見附件2)
2.調查發現,云南某電力技術咨詢有限公司人員沒有按規定辦理入廠手續,人員入廠及作業情況均沒有通知云南某公司安全監察部,沒有錄入承包商門禁系統。兩次帶壓堵漏工作均由云南某公司生技部金屬專責余某某聯系云南某電力技術咨詢有限公司人員并自行接入廠內。
3.調查發現,8 月 10 日、9 月 14 日兩次帶壓堵漏處理過程中,工作班成員均沒有按方案要求穿著防燙傷工作服,只是佩戴了防燙手套和面罩。
4.現場核查,主給水放水管已完全斷裂,下部水泥平臺被擊穿,臨近的滑動支架被高壓水汽吹脫至靠汽機房墻面,注膠槍與夾具脫開,吹至靠汽機房墻面。給水平臺頂端下部懸空冷再供熱母管保溫外護板有明顯碰撞變形痕跡,和余某某事故中躲避位置、事故后墜落位置對應。
5.調閱 9 月 14 日機組運行參數,帶壓堵漏工作開始前沒有采取降負荷、降給水壓力及溫度等安全預控措施,也沒有維持運行參數穩定的具體措施。
6.調查事故發生后運行應急處置,15時 19 分放水管爆漏,15時 35 分鍋爐 MFT,鍋爐給水壓力仍然維持在13.25MPa;15 時 47 分 28 秒開始關閉 8 號鍋爐給水進口總電動門,15時 48 分 20 秒關閉到位,鍋爐給水壓力8.66MPa;15 時 47分 35 秒開始關閉 8 號鍋爐給水出口總電動門,15時 53 分00 秒關閉到位。事故發生后16 分鐘后給水壓力未有效調整降低,28分鐘后才開始隔離系統,應急處置措施不及時。
7.在 2018 年 8 號機組 C 修中對主給水電動門后放水管減薄彎頭(本次事故泄漏點)采取的是用機制彎頭進行更換,不符合《電力行業鍋爐壓力容器安全監督規程》(DL/T612-2017)第 8.2.4條“預制成形的管件或閥門對接時應在中間設直管,其長度可按下列規定選用:a)公稱尺寸小于DN150 的管道,不小于150mm”的規定。由于未按規程要求中間使用直管,致使放水管剛性較大,彎頭與管座對接接頭的管座側熱影響區位置應力集中,易產生金屬疲勞出現裂紋導致泄漏。
8.8 月 10 日第一次發現放水管泄漏,漏點為線狀裂紋,在焊口上部管座側的熱影響區,距離焊口約2mm 母材處,長度約3 至 5mm。9 月 14 日帶壓堵漏過程中,在該裂紋位置發生斷裂爆開。對爆口斷面進行分析,斷面為環形,焊口無損傷,對斷裂爆口、管座、焊縫,以及相連彎頭、直管段材質光譜定性分析,材質與20G 相符(見附件 9)。分析裂紋產生原因為放水管焊口熱影響區剛性較大,彎頭與管座對接接頭的管座側熱影響區位置應力集中,產生金屬疲勞出現裂紋,發生泄漏。
9.8 月 10 日第一次泄漏時,先采用捻壓工藝處理,后使用卡具對其加固,但并未徹底消除疲勞裂紋,由于原裂紋是機械性金屬疲勞所致,裂紋呈直線狀,初期較短,中后期裂紋逐漸變長,并加快擴大,導致在9 月 12 日再次發生泄漏。
9 月 14 日采取對卡具注膠封堵漏點,工作時主給水壓力為17.4MPa,注膠泵壓力高達5MPa,在此內外力作用下裂紋擴大,直至完全斷裂,由于沒有對卡具固定,造成管座和放水管斷開分離,高溫高壓水汽大量噴出。
(二)直接原因
在 8 號機組鍋爐主給水管道放水管漏點處理過程中,放水管突然爆漏,高溫水汽大量噴出,導致工作現場3 人不同程度燙傷,其中1 人在躲避高溫水汽過程中從12.6 米作業平臺墜落至鍋爐0 米地面,經搶救無效死亡;1人送醫救治8 天后死亡。
(三)間接原因
1.違規組織開展帶壓堵漏工作。在電廠最高壓力等級的主給水系統發生泄漏且未做認真排查分析的情況下,違章指揮,冒險作業,連續2 次開展帶壓堵漏。
2.安全防護措施不落實,帶壓堵漏的工作班成員未穿著防燙工作服違章作業。
3.在 8 月 10 日對泄漏點進行帶壓堵漏時未對所用夾具有效固定,導致管子斷裂后爆開。
(四)暴露問題
1.安全紅線意識淡漠。對爐外管泄漏的處理,國家和行業標準均有明確的規定,《電力安全工作規程》第7.1.9 條“在鍋爐運行中,不應帶壓對承壓部件進行焊接、捻縫、緊螺絲等工作”,國家能源局《防止電力生產事故的二十五項重點要求》第6.5.5.1 條“爐外管發生漏氣、漏水現象,必須盡快査明原因并及時采取措施,如不能與系統隔離處理應立即停爐”。云南某公司鍋爐主給水管道放水管泄漏后,沒有認真開展原因分析、風險評估,沒有嚴格執行安全規程,沒
有采取停爐消缺的處理方式,在非特殊緊急情況下,違規在最高壓力等級的主給水系統帶壓堵漏,造成人員傷亡的嚴重后果。調查發現,云南某公司近年來多次開展帶壓堵漏,2021年以來已進行了3 次,違規作業已成常態,暴露出領導班子和各級生產管理人員安全意識淡漠,紅線意識和底線思維缺失,對安全標準、規程缺乏應有的敬畏之心,隨意突破制度底線。
2.安全風險管控制度標準不完善。云南某公司雖制定了《安全風險管理規定》,但制度內容沒有涵蓋區域風險、設備風險的相關內容,對作業任務風險只是簡單的要求“建立完善作業風險數據庫,各部門依據作業風險數據庫在生產實際工作任務中對照落實”,沒有部門和崗位職責,沒有風險辨識、評估、數據庫建立和管控措施執行的流程標準,誰評估、評估周期、評估原則,誰提出、誰批準,都不明確,應用過程就是從數據庫中選取調用。調查發現,云南某公司風險數據庫編制流于形式,照抄其他單位,作為循環流化床鍋爐,沒有爐內升降平臺設備,風險數據庫卻包含有爐內升降平臺搭設拆除項目,暴露出云南某公司制度標準不完善,與生產流程脫節、與實際執行脫節,缺乏可操作性和指導意義,員工不能依從標準、執行標準,制度失去應有作用。
3.員工人身安全風險分析預控執行有誤區。云南某公司員工人身安全風險分析預控管理辦法規定“當確定人身傷害風險程度為“高”時,嚴禁工作,必須將人身傷害風險程度降至為“低”時,方能進入現場開展工作”,按此規定,實際工作中已不可能存在“高”風險作業等級。調查發現,云南某公司所有員工人身風險預控本均填寫為“低”風險,并按照低風險進行管控,明顯不符合實際工作需要,阻礙了風險管理動態評估、分級控制的落地執行。云南某公司制度規定“工作負責人在檢查所有作業組成員進行人身風險預控并在《人身風險預控本》簽字確認后,方可辦理開工”,調查發現,云南某電力技術咨詢有限公司作業人員、運行許可人及余某某事發當天均未填寫人身風險預控本,工作負責人即違規組織開工作業。工作負責人人身風險預控本評估出存在高溫、灼燙傷風險,但沒有制定針對性預控措施,沒有對現場不穿防燙服的行為堅決制止,暴露出云南某公司員工人身安全風險分析預控制度執行不嚴格,日常檢查評價、效果評估不嚴不實,人身風險預控沒有起到有效管控作用。
4.高風險作業安全管控流于形式。調查發現,云南某公司沒有制定高風險作業管理制度,沒有編制高風險作業清單,風險數據庫中鍋爐、汽機、電氣專業檢修共104 項工作任務,均未評估出高風險任務,8月 10 日、9 月 14 日兩次將極高風險帶壓堵漏作業定義為低風險作業,沒有設置全過程視頻監控,沒有開展應急演練、各級管理人員均沒有到過事發作業面進行監督檢查,暴露出云南某公司在集團公司安全風險預控工作指導意見已經印發,明確要求對每個作業步序進行風險辨識,確定風險等級,實施分級管控的情況下,對安全風險管控依然停留在紙面上,沒有強化高風險作業管控,沒有按照指導意見和集團公司多次會議、文件的要求對風險預控工作扎實推進,沒有切實應用到現場作業管理流程中去。
5.工作票管理不規范。云南某公司生產部門人員年齡結構偏大,其中生產崗位在編人數538 人,在崗平均年齡48.52歲,部分人員對工作票信息化平臺操作不熟悉,工作票負責人不具備提票能力,持票人與提票人不符。9月 14 日帶壓堵漏工作票為班長提票,非工作負責人自己填寫,工作負責人履責能力不足;調查發現,云南某公司生產領導、生技部專責及以上人員、運行部管理人員等均授予了各類工作票簽發人資格,工作票簽發人授予資格范圍過廣,任職條件及安全職責無法滿足集團工作票管理辦法相關要求,事發當天,帶壓堵漏工作票簽發人未到事發作業面檢查安全措施執行情況,工作許可人未與工作負責人一起現場確認設備狀況及安全措施,票權人安全職責落實不到位;兩次帶壓堵漏作業,外委作業人員趕赴現場均未攜帶防燙傷工作服等必備防護用品,現場隔離防護、個人防護等措施未得到落實,各級管理人員未及時發現問題并糾正。
6.外委隊伍安全管控不嚴格。8月 10 日、9 月 14 日兩次帶壓補漏外委人員均由云南某公司生技部人員接入廠里,沒有通知安全環保部,沒有安全協議、合同、三級安全教育培訓、體檢證明、錄入門禁等任何入廠資料、手續,只進行了安全交底,就進行現場作業,外委隊伍準入管理形同虛設;云南某公司制度規定“外委單位事先制定的“三措兩案”,必須經生產技術部審查合格方能實施”,調查發現,2021年 7號汽輪機揭缸大修及抽穿發電機轉子“三措兩案”審核、批準均由外委單位完成,“三措兩案”內容不全,危險因素辨識及控制措施表未落實到人,7號鍋爐省煤器出口煙道、非金屬膨脹節更換等項目,未見外委項目安全員任命通知,入廠資料中沒有安全工器具清單。暴露出云南某公司對外委單位作業文件審核把關不到位,失去監管;2021年 1-8 月,云南某公司月度安全分析會、季度安委會多次指出外委隊伍“十必須兩嚴格”方面存在“外委隊伍入廠資料不全、現場管控不到位、現場作業不規范、班組臺賬未健全及記錄不完善”等相似問題,沒有明確針對性管控措施,外委隊伍安全管理十必須沒有做好落地執行。
7.安全警示教育開展不深入。調查發現,2021年云南某公司事故責任班組設備檢修部鍋爐本體班及運行部運行三值安全活動沒有公司領導參加的記錄,運行三值班組安全活動未有效開展,9月份安全活動記錄,只有班員到會簽名,無活動日期和學習內容,事故調查期間,問詢多名生產管理人員,不了解近期集團事故情況,云南某公司雖然在制度上規定了主要領導每月至少參加1 次聯系點活動,了解、督導聯系點安全生產工作的相關機制,但是聯系點只到部門,沒有延伸到班組,暴露出云南某公司對安全培訓警示教育重視不夠,措施不力,班組安全培訓圖形式,走過場,公司督導檢查沒有抓住安全培訓薄弱環節在基層的牛鼻子,深入基層,深入班組,長期培訓教育工作的不到位導致安全基礎薄弱,為事故埋下隱患。
8.反違章工作未發揮實效。2021年云南某公司制定了零違章目標,并層層簽訂目標責任狀進行落實,將反違章這個安全管理的重要手段,作為安全目標進行管理,與員工簽訂的目標責任狀將發生違章列為否決條件,扣罰全部的安全環保目標獎(近萬元),高額違章處罰方式,造成公司安監管理人員處罰違章壓力大,不能真正落地執行,截止到8 月份,云南某公司2021 年只查處 8 起違章(其中外委人員5 次,職工 3 次),反違章體制機制不合理,安全生產監督體系未發揮應有作用。調查發現,云南某公司兩次帶壓堵漏,作業人員長時間現場作業,安監部門卻不掌握作業信息,未能對違章行為有效進行監管,暴露出云南某公司日常反違章機制存在較大漏洞,對違章行為盯得不緊、抓得不牢、看得不嚴。
9.隱患排查治理不系統不規范。2018年,8 號爐主給水管道疏放水管更換后,預制成形的管件對接時沒有按照規程在中間設直管,檢修中制造了隱患;檢修后至發生泄漏,長達3 年時間,云南某公司隱患排查不全面,不細致,沒有對照規程,對照同類型的7 號爐相同位置檢查梳理,及時發現隱患;8月 10 日,隱患導致缺陷,發生泄漏,沒有全面的分析查找泄漏產生的根本原因,沒有制定針對性的技術方案,僅憑經驗處理,沒有及時消除隱患;9月 12 日再次泄漏,云南某公司沒有吸取第一次失敗的教訓,盲目處理,隱患引發事故。
調查發現,云南某公司2021 年度安全生產專項整治三年行動“兩個清單”,問題隱患不分,類別全部是問題,清單共11項,10 項為已經完成的項目,實際只有1 項問題和隱患,暴露出云南某公司對安全生產“雙控”工作重視不夠、執行不力,對隱患的排查治理流于形式,雖制度規定“各生產部門每周、班組每天至少組織一次隱患排查”,沒有扎實開展,動態更新。
(五)事故性質
經調查認定,該事故是一起由于違規開展帶壓堵漏,處理過程中主給水放水管漏點突然斷裂爆漏,高溫水汽大量噴出,導致先后死亡2 人,燙傷 1 人的負主要責任一般事故。
五、事故責任認定及處理
根據《集團生產安全事故內部調查處理規定》、《集團職工違規違紀處理辦法》、《集團云南電力有限公司安全工作獎懲規定》、《云南某發電有限公司安全工作獎懲管理規定》及施工合同相關規定,對事故單位和相關責任人作出處理建議如下:
(一)對事故責任單位的處理意見
1.云南某公司。安全主體責任未有效落實,風險管控流于形式,外委隊伍安全管控缺失,違章指揮,僥幸冒險作業,對本次事故負主要管理責任。根據集團公司有關規定,中斷其連續安全生產記錄,由云南公司根據目標責任制及相關考核辦法對云南某公司進行績效考核。
2.外委單位云南某電力技術咨詢有限公司。作業人員安全意識薄弱,未履行任何手續違規入廠,未制定施工措施方案,未嚴格落實個人防護措施,違章作業,對本次事故負直接責任。責成云南某公司對云南某電力技術咨詢有限公司追責處罰,建議集團公司按照《供應商失信行為管理實施細則(試行)》對其進行處置。
(二)對相關責任人的處理意見
1.楊某某,云南某公司設備檢修部鍋爐檢修班班組安全員,工作負責人,沒有按規定嚴格履行工作負責人職責,對作業人員沒有辦理入廠手續、無焊工資質進行焊接沒有提出異議和糾正;對現場安全風險管控不力,沒有組織作業組成員評估風險,開展人身風險預控,未監督落實穿戴防護用品的安全措施,負主要責任,建議給予待崗培訓六個月處分。
2.黃某,云南某公司設備檢修部鍋爐專責,工作票簽發人,未嚴格履行工作票簽發人安全職責,對工作票安全措施考慮不全面,違章降低風險管控等級,現場作業安全監管不到位,未到事發作業面檢查安全措施執行情況,負直接管理責任,建議給予待崗培訓六個月處分。
3.楊某某,云南某公司設備檢修部鍋爐檢修班班長,班組安全生產第一責任人,班組安全管理不到位,班前會沒有針對當天帶壓堵漏作業提示安全風險、安全注意事項和布置安全措施,安排的工作負責人不合理、履責能力不足,工作票辦理中違章代替工作負責人提票,未到事發作業面檢查檢修作業情況,負管理責任,建議免去班長職務,考核績效6000元。
4.李某某,云南某公司設備檢修部鍋爐專責,技術監督把關不嚴,作業流程管控不到位,負管理責任,建議給予記大過處分,考核績效6000 元。
5.李某,云南某公司設備檢修部金屬專責,金屬技術監督管理工作不到位,導致鍋爐高壓設備泄漏為事故埋下隱患,負技術管理責任,建議給予記大過處分,考核績效6000 元。
6.楊某某,云南某公司設備檢修部安全專責,總體協調部門安全監察,負責工作票管理。安全教育培訓不到位,工作票執行監管不到位,現場作業安全監管不到位,負管理責任,建議給予記過處分,考核績效5000 元。
7.張某,云南某公司設備檢修部安全專責,負責機務安全監察工作。安全教育培訓不到位,工作票執行監管不到位,現場作業安全監管不到位,負管理責任,建議給予記過處分,考核績效5000 元。
8.楊某,云南某公司設備檢修部安全專責,負責部門電氣安全監察和應急預案培訓管理工作。安全教育培訓不到位,工作票執行監管不到位,現場作業安全監管不到位,負管理責任,建議給予記過處分,考核績效5000 元。
9.李某,云南某公司設備檢修部安全專責,負責外包隊伍的安全監察工作。外包隊伍的安全管理不到位,工作票執行監管不到位,現場作業安全監管不到位,負管理責任,建議給予行政記過處分,考核績效5000 元。
10.唐某,云南某公司設備檢修部副主任,分管部門綜合和消防安保工作,安全管理工作不到位,負管理責任,建議給予警告處分,考核績效5000 元。
11.李某某,云南某公司設備檢修部副主任,分管技術監督、技術培訓、設備可靠性管理,技術監督把關不嚴,作業流程管控不到位,負管理責任,建議給予記大過處分,考核績效6000 元。
12.陳某某,云南某公司設備檢修部副主任,分管鍋爐專業,對施工作業“三措兩案”審核把關不嚴,未嚴格落實“三措兩案”執行,現場作業安全監管不到位,負管理責任,建議給予降職處分,考核績效8000 元。
13.普某某,云南某公司設備檢修部黨支部副書記(主持工作),未履行好“黨政同責、一崗雙責”職責,負管理責任,建議給予記大過處分,考核績效8000 元。
14.普某,云南某公司設備檢修部主任,部門安全生產第一責任人,主持設備檢修部行政全面工作,對外委隊伍管理不到位,對施工作業“三措兩案”審核把關不嚴,未嚴格落實“三措兩案”執行,對現場作業安全監管不到位,負管理責任,建議給予降職處分,考核績效8000 元。
15.黃某某,云南某公司運行部集控三值單元長,工作票許可人,安全措施執行不到位,未按方案要求有效落實降溫降壓措施,未有效監督落實工作班成員按規定穿戴防護用品,事故發生后,未果斷指揮迅速停機、隔離主給水管道,給人員搶救造成困難,負直接責任,建議給予待崗培訓六個月處分。
16.嚴某,云南某公司運行部安全專責,負責電氣安全監察工作及部門安全協調工作,安全教育培訓不到位,工作票執行監管不到位,應急處置培訓不到位,負管理責任,建議給予警告處分,考核績效5000 元。
17.鄭某某,云南某公司運行部安全專責,負責熱機安全監察工作,安全教育培訓不到位,工作票執行監管不到位,應急處置培訓不到位,負管理責任,建議給予警告處分,考核績效5000 元。
18.任某,云南某公司運行部副主任,分管值長組(隨值長組借調生產技術部履行職責),對值長安全教育培訓不到位,現場作業安全監管不到位,負管理責任,建議給予記過處分,考核績效6000 元。
19.熊某,云南某公司運行部副主任,分管集控運行專業,對集控班組安全教育培訓不到位,事故狀況下的應急處置措施不到位,負管理責任,建議給予記過處分,考核績效6000元。
20.王某,云南某公司運行部黨支部書記,未履行好“黨政同責、一崗雙責”職責,負管理責任,給予記大過處分,考核績效8000 元。
21.李某某,云南某公司運行部主任,部門安全生產第一責任人,主持運行部行政全面工作,組織事故狀況下的應急處置措施不到位,負管理責任,建議給予記大過處分,考核績效8000 元。
22.羅某,云南某公司生產技術部當班三值值長,工作票審批人,對工作票安全措施審核把關不嚴,未督促按方案要求落實降溫降壓措施。事故發生后,未果斷決策指揮迅速停機、隔離主給水管道,給人員搶救造成困難,安全監管責任不到位,負間接監管責任,建議給予待崗培訓六個月處分。
23.余某某,云南某公司生產技術部金屬監督主管,本次作業工作直接協調聯系人和技術負責人,專業技術管理不到位,未嚴格落實安全技術措施,不按規定辦理手續帶外委人員入廠,安全意識淡薄,未穿戴防護用品,負主要管理責任,因已死亡,免于追究相關責任。
24.凌某某,云南某公司生產技術部主任工程師,協助部門主任分管運行節能技術工作,負運行技術管理責任,建議給予記過處分,考核績效6000 元。
25.張某某,云南某公司生產技術部副主任,分管檢修工作,對外委隊伍管理不到位,未按規定履行外委項目安全管理程序,兩次帶壓堵漏工作方案均由其署名編寫,未嚴格組織落實“三措兩案”執行,現場作業安全監管不到位,負管理責任,建議給予記大過處分,考核績效8000 元。
26.趙某,云南某公司生產技術部副主任(主持工作),部門安全生產第一責任人,全面主持生產技術部行政工作,對外委隊伍管理不到位,未按規定履行外委項目安全管理程序,兩次帶壓堵漏工作方案均由其簽字審核,對“三措兩案”審核把關不嚴,未嚴格組織落實“三措兩案”執行,違章組織開展現場檢修作業,負主要技術管理責任,建議給予撤職處分,考核績效8000 元。
27.李某某,云南某公司安全監察環保部安全主管,對外委隊伍管理不到位,現場作業安全監管不到位,負安全監察責任,建議給予警告處分,考核績效6000 元。
28.陳某某,云南某公司安全監察環保部安全主管,安全風險預控監督執行不到位,現場作業安全監管不到位,負安全監察責任,建議給予警告處分,考核績效6000 元。
29.唐某,云南某公司安全監察環保部安全主管,安全教育培訓不到位,現場作業安全監管不到位,負安全監察責任,建議給予警告處分,考核績效6000 元。
30.曾某,云南某公司安全監察環保部副主任,未能有效監督管理各級人員嚴格執行安全生產規章制度,安全監管不到位,負安全監察責任,建議給予記大過處分,考核績效6000元。
31.劉某某,云南某公司安全監察環保部主任,未能有效監督管理各級人員嚴格執行安全生產規章制度,安全監管不到位,負安全監察責任,建議給予降職處分,考核績效8000元。
32.云南某公司總工程師,負責公司技術管理和技術監督體系,標準、方案、措施的審批,對安全生產工作承擔業務保安責任。違規組織開展極高風險的鍋爐主給水系統帶壓堵漏作業,先后兩次帶壓堵漏工作方案均由其簽字批準;參加9 月 14 日堵漏現場安全技術交底,在明知工藝系統及作業人員安全措施均不到位的情況下允許開工作業,對高風險作業安全管控缺失,對極高風險的帶壓堵漏作業按低風險作業管控,沒有上報云南公司進行有效監管,負主要領導責任,建議給予撤職處分,考核績效10000 元。
33.云南某公司副總經理,負責安全生產管理工作(9月 1 日后離廠參加集團培訓),對安全生產工作履責不到位,失管失察。第一次鍋爐主給水放水管泄漏后曾到現場查看,在知道可能需要由外委單位開展極高風險帶壓堵漏作業的情況下,沒有提出有效管控要求、進行工作部署,默許工作開展;對云南某公司安全生產制度執行、隱患排查治理、外委隊伍管理等督促指導和監督檢查不到位,安全管理基礎薄弱;對集團安全生產工作部署要求推動落實不到位,云南某公司安全風險管控、人身風險預控流于形式,負領導責任,建議給予記大過處分,考核績效10000 元。
34.云南某公司黨委副書記、總經理,協助黨委書記、董事長主持公司全面工作,同為公司安全生產主要責任人,對公司安全生產工作共同承擔領導責任。作為安全生產主要負責人,對企業安全生產體制機制、隱患排查、培訓教育、外委隊伍、風險管控、反違章等方面存在的管理問題沒能深入研究解決,主持召開的月度安全生產分析會,流于形式,沒有采取針對性管控措施,相同管理問題未得及時有效解決。對云南某公司安全生產管理不到位,負領導責任,建議給予降職處分,考核績效10000 元。
35.云南某公司黨委書記、董事長,主持公司全面工作,是公司安全生產第一責任人,全面負責安全生產工作。作為安全生產第一責任人,對企業安全生產體制機制、隱患排查、培訓教育、外委隊伍、風險管控、反違章等方面存在的管理問題沒能深入研究解決;組織召開的月度安全生產分析會,流于形式,沒有采取針對性管控措施,相同管理問題未得及時有效解決。對云南某公司安全生產管理不到位,負領導責任,建議給予降職處分,考核績效10000 元。
36.云南公司安全生產部和燃料管理部主任,負責云南公司安全生產管理及監督工作。對所屬企業隱患排查治理、外委隊伍管理等督促指導和監督檢查不到位,對集團安全風險預控工作推動落實不到位,所屬企業風險預控流于形式,負管理責任,建議給予記大過處分,考核10000 元。
37.云南公司副總經理,分管安全生產工作。對云南公司安全管理統籌協調不到位,對公司所屬企業督促檢查不到位,未能深入推進云南公司安全風險預控和安全生產隱患排查治理工作,負領導責任,考核20000 元,建議按照有關規定進行問責。
38.云南公司黨委副書記、總經理(2021年 9 月23 日后任云南公司一級業務總監),協助黨委書記、董事長主持云南公司全面工作。對云南公司安全生產和所屬企業管理不到位,負領導責任,考核20000 元,建議按照有關規定進行問責。
39.云南公司黨委書記、董事長,主持云南公司全面工作,云南公司安全生產第一責任人。對云南公司安全生產和所屬企業管理不到位,負領導責任,考核20000 元,建議按照有關規定進行問責。
六、事故防范和整改措施建議
1、提高政治站位,樹牢安全發展意識,強化底線思維。云南某公司要對集團公司、云南
公司近期安全生產會議精神及下發的文件重新組織學習,認真貫徹落實相關工作要求。要深刻吸取本次事故及近期系統內外發生的安全事故教訓,開展為期三個月的安全整頓活動,成立以公司黨政一把手為組長的“安全生產整頓活動”領導小組,明確目標,制定方案及措施,深刻吸取本次事故的教訓,針對本次事故暴露的問題,舉一反三,全面開展排查,嚴肅整改,堵塞安全生產管理的漏洞,確保活動取得實效。活動結束云南公司要組織驗收。
2、深刻吸取教訓,深挖問題根源。針對事故暴露的問題,舉一反三,深入開展排查,制定問題整改清單,落實責任人,明確完成時限。召開事故警示教育大會,組織開展安全生產大反思、大討論、大排查、大整頓活動,公司領導班子及所有管理人員全部下沉班組參加、指導活動,切實整治安全生產工作不嚴不實的問題,補足短板差距,堵塞管理漏洞,盡快扭轉安全生產被動局面。
3、健全制度體系,嚴格反違章管理。按照集團公司制度體系建設要求,全面梳理安全生產規章制度,進一步健全完善制度體系;建立健全安全風險分級管控和隱患排查治理雙重預防機制;要健全反違章機制,開展反違章再教育,嚴格監督考核,以高壓態勢扎實抓好反違章工作,個人不違章,管理上不違章,裝置上不違章,不制造違章和違規。每周至少開展一次聯合糾察“三違”工作,無特殊情況,分管負責人必須參加,主要負責人每月至少參加一次。
4、強化安全風險預控管理。全面辯識、預想、研判、管控各類風險點,確定風險等級,制定有效實用的管控措施及應急機制,建立健全安全風險數據庫管理機制,推行使用安全風險預控票,實現縱深防御、管控前移、源頭治理;動態更新隱患排查治理清單,明確和細化隱患排查的事項、內容和頻次,責任落實到人,推動全員參與隱患排查,堅持“隱患就是事故”的理念,
加強生產現場巡查,堅決做到“不辯識、不作業、不管控、不作業”;嚴格執行人身風險預控制度,落實風險預控措施,保證人身安全。結合班前、班后會、每日作業開工前安全交底,做好員工人身安全風險分析預控,各級管理人員按規定強化過程監控及獎懲考核,確保人身風險預控工作落到實處。
5、嚴格執行兩票三制。重新全面梳理工作票三種人權限,根據工作實際重新考試審核認定;加強各級人員安全技能培訓,提高安全意識、業務技能。所有生產人員重新學習《安規》和集團公司二十五項重點反事故措施等并考試合格;強化兩票三制執行情況的監督檢查,確保工作票三種人職責落實到位,每周開展一次工作票、操作票執行情況專項檢查;對兩票三制執行不
到位,監督不到位情況嚴格考核和問責。
6、全面加強外委隊伍管理。立即開展外委隊伍全面大排查,對全廠外委隊伍資質、人員資質、入廠手續、合同、安全協議、保險、三級安全教育、“三措兩案”、工器具、勞動防護用品等進行清單式排查,不符合集團公司外委隊伍管理要求的單位和人員一律清退出場;拉網式排查所有檢修及外委項目現場,重新辨識評估風險,排查隱患,即查即改,對不完成整改或未
采取可靠有效措施的一律停工整頓,審驗復核合格一家復工一家;完善外委隊伍管理制度及管控流程,把好入口關,強化過程監管,嚴肅獎懲考核。
7、加強安全教育培訓。嚴格落實三級安全教育制度,對安全培訓計劃落實情況進行全面檢查,確保完成率100%;嚴格執行安全生產聯系點和事故警示教育日制度,重新梳理明確各級管理人員聯系基層班組名單,嚴格參加班組安全日活動;加強事故案例警示教育,深刻吸取事故教訓,舉一反三排查治理安全隱患,防范同類事件發生。
8、強化技術監督管理。立即組織開展機爐外小管隱患專項排查,建立完善機爐外小管設備臺賬及管控清單,及時消除隱患,暫不能消除的隱患制定落實切實可行的防范措施,防范同類事故發生;加強技術監督管理,壓實技術監督三級網絡責任,及時發現和消除設備隱患,提高設備可靠性;強化檢修質量管控,嚴格按照檢修文件包、檢修工藝卡等標準開展作業,強化過程管控,做到誰施工誰負責、誰驗收誰負責、誰簽字誰負責;加強隱患排查治理,加大投入力度,完善安全設施,改善作業環境,杜絕裝置性違章。
9、嚴格執行“三措兩案”編制、審批流程,各級審批人員嚴格把關,誰審批誰負責、誰簽字誰負責,對于不按施工方案施工,尤其是安全措施不落實的現場一律停工整頓。
10、認真吸取云南某公司“9.14”事故教訓,在集團云南電力有限公司所屬各單位開展安全生產“大反思大檢查大討論”專項治理活動。
附件1 事故現場圖片資料















