盡職免責案例重慶港灣建筑勞務公司“10·9”一般高墜事故調查報告
2019年10月9日17時10分許,重慶港灣建筑勞務有限公司(以下簡稱重慶港灣勞務公司)在巴南區魚洞街道集美景灣二標11#樓貼外墻巖棉施工作業過程中,發生一起高處墜落致1人死亡的生產安全事故,直接經濟損失130.15萬元。
一、事故發生單位概況
(一)工程概況
集美景灣二標段工程位于重慶市巴南區金竹工業園,工程建筑結構類型為框架剪力墻結構,建筑面積約105000平方米,包括3#、4#、7#、9#、10#、11#住宅、1棟幼兒園及整體地下車庫。樓層高度為1、3、8、9、26層不等,其中9、10、11#樓為26層。
(二)建筑施工相關單位
建設單位:重慶南錦聯房地產開發有限公司
監理單位:重慶新魯班工程監理有限責任公司
施工單位:江蘇啟安建設集團有限公司
勞務單位:重慶港灣建筑勞務有限公司
(三)事故發生單位概況
重慶港灣勞務公司,為有限責任公司,成立于2006年,注冊資本:400萬元,法定代表人沈善祥兼總經理職務,公司營業執照統一社會信用代碼:91500105787479923X,經營范圍:模板腳手架專業承包不分等級。公司地址:重慶市江北區盤溪路422號3幢35-12。
江蘇啟安建設集團有限公司,為有限責任公司,成立于1989年,注冊資本:15000萬元,法定代表人殷煒東,公司營業執照統一社會信用代碼:913206811388337938,經營范圍:建筑工程、地基基礎工程、公路工程等。公司地址:江蘇省啟東市匯龍鎮人民中路683號。
二、事故發生經過和事故應急處置情況
(一)事故發生經過
2019年10月9日13時許,重慶港灣勞務公司貼外墻巖棉班組工人左華林到集美景灣二標11#樓使用45號吊籃上升到17樓層繼續從事貼巖棉施工作業,雜工許小玲負責給左華林提供貼巖棉材料和外墻貼接劑工作。17時10分許,當11#樓升降機操作人員彭紅操作升降機下降至地面等待信號時,正前方突然墜落一個藍色物體并伴生一聲巨響。彭紅便從升降機操作室走出查看,發現一人摔在地面上,腳朝外,頭朝內,面朝上,安全帶拴在身上,左手有泥,未出血,安全帽脫落在旁邊。
(二)事故應急救援處置情況
事故發生后,彭紅叫現場人員吳紅梅給外墻作業班長劉有兵電話報告。同時,聞訊趕來的重慶港灣勞務公司施工員雷正慶撥打“120”,經“120”醫生搶救無效,宣布左華林死亡。庚即,重慶港灣勞務公司法定代表人兼總經理沈善祥向區住房城鄉建委報告。
(三)傷亡人員基本情況
死者左華林,男。
三、事故造成的直接經濟損失
該事故造成1人死亡,直接經濟損失130.15萬元。
四、事故技術分析
(一)事故現場勘察
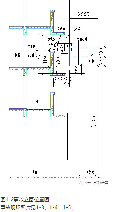
10月10日、14日、15日,專家組和調查組相關人員對事故現場進行了勘驗和調查。左華林高處墜落位置為11#樓20層衛生間外側空調板位置,45#吊籃短邊位于空調板外側,與空調板間隙約30厘米;空調板長約1.1米,寬約0.8米,與20樓衛生間外側窗臺頂面高差約1.6米,距粘貼巖棉最高位置約2.7米??照{板上放置有一個灰桶和灰刷。衛生間外側墻寬度35厘米。死者位置位于45#吊籃正下方地面。事故平、立面圖見圖1-1、1-2。





(二)事故直接原因技術分析
1.巖棉粘貼作業人員未掛安全帶,違規冒險作業
根據現場勘查和相關記錄,死者左華林在11#樓20層施工,違規取掉安全繩上的掛鉤跨出吊籃并蹲在衛生間的窗臺上作業。當材料用完后起身準備返回吊籃拿材料時重心失穩未能抓穩窗臺上方側墻不慎從吊籃與空調板之間的空隙墜落至地面。見圖1.1窗臺上方側墻抓痕圖。

圖1.1 窗臺上方側墻抓痕圖
2.吊籃生命繩設置正常、安全帶未發現明顯缺陷或損傷
根據現場勘驗情況,45#吊籃設置有生命繩和安全鎖扣,死者安全帶系于身上,未發現斷裂和明顯損壞,經查《安全帶檢驗報告》,安全帶符合GB6095-2009標準要求。
安全帶上的安全繩長度為3米,吊籃生命繩距衛生間窗臺約1.1米,空調板距衛生間窗臺的高度為1.6米。安全帶能夠掛到吊籃生命繩上。
本次事故與安全帶、生命繩、安全鎖扣無直接關系。
(三)事故發生過程分析
根據以上調查分析,外墻巖棉粘貼作業人員左華林在11#樓20層衛生間外側窗臺部位進行外墻巖棉粘貼作業,作業時蹲在衛生間的窗臺上,沒有將安全帶掛在吊籃生命繩的安全鎖扣上,當材料用完后起身準備返回吊籃拿材料時重心失穩,未能抓穩窗臺上方側墻不慎從吊籃與空調板之間的空隙墜落至地面。
(四)結論
外墻巖棉粘貼作業人員左華林未掛安全帶,違規冒險貼巖棉作業,是本次高處墜落事故的直接原因。
五、事故發生的原因和事故性質
(一)事故發生的直接原因
重慶港灣勞務公司外墻貼巖棉工人左華林,違規取掉安全繩上的掛鉤跨出吊籃并蹲在11#樓20層1.2米高、寬0.25米的衛生間窗臺上冒險貼巖棉作業,當材料用完后起身準備返回吊籃拿材料時,由于重心失穩,且未能抓穩窗臺上方側墻,不慎從吊籃與空調板之間的空隙墜落到地面受傷致死亡。
(二)事故發生的管理原因
1.重慶港灣勞務公司安全生產主體責任落實不到位,具體表現在:
①重慶港灣勞務公司沒給左華林明確安全生產崗位責任制、責任范圍和考核標準等內容。
②沒有對左華林進行安全生產教育培訓學習和技術交底。
③外墻貼巖棉作業現場安全管理缺位,安全管理人員沒有根據本單位外墻貼巖棉的生產作業特點進行經常性的安全檢查。
④執行落實外墻貼巖棉操作規程不力,同時監督從業人員左華林正確使用防護用品不力。
⑤主要負責人沒有建立本單位安全生產責任制。
⑥沒有組織制定本單位安全生產教育和培訓計劃。
2.江蘇啟安建設集團有限公司安全生產主體責任落實不到位,具體表現在:
①對左華林的安全生產教育培訓走形式、造假,也未進行考核,同時也沒有進行其對外墻貼巖棉作業安全技術交底。
②本單位的安全生產管理人員沒有根據外墻貼巖棉作業情況進行安全檢查,現場安全管理缺位。
(三)事故性質
通過本次事故直接原因和管理原因,結合專家意見和現場勘驗,綜合分析,調查組認定本次事故是一起生產安全責任事故。
六、對事故責任者的處理建議
(一)左華林,重慶港灣勞務公司外墻貼巖棉材料工人,違規取掉安全繩上的掛鉤跨出吊籃并蹲在11#樓20層1.2米高、寬0.25米的衛生間富臺上冒險貼巖棉作業,當材料用完后起身準備返回吊籃拿材料時重心失穩未能抓穩富臺上方側墻不慎從吊籃與空調板之間的空隙墜落到地面受傷致死亡。其行為違反了《中華人民共和國安全生產法》第五十四條的規定。對本次事故負有責任,涉嫌重大責任事故罪?,F人已死亡,建議免于處理。
(二)重慶港灣勞務公司,作為生產經營單位,沒有給左華林明確崗位責任制、責任范圍和考核標準等內容,沒有對左華林進行安全生產教育培訓和安全技術交底,施工作業現場安全管理缺位、安全管理人員沒有根據本單位外墻貼巖棉材料作業特點進行經常性的安全檢查,執行落實貼外巖棉材料操作規程不力,監督左華林正確使用安全防護用品不力,造成了嚴重社會影響。其行為違反了《中華人民共和國安全生產法》第十九條第一款、第二十五條第一款、第四十一條、第四十二條和第四十三第一款的規定,對本次事故負有責任。根據《中華人民共和國安全生產法》第一百零九條第一項和《安全生產行政處罰自由裁量適用規則》第十五條第七項的規定,建議區應急局給予其人民幣36萬元罰款的行政處罰。根據《重慶市巴南區人民政府安全生產委員會關于加強當前安全生產的緊急通知》巴南安委[2019]4號的規定,在媒體上對重慶港灣勞務公司予以公開曝光,并錄入信用體系。
(三)沈善祥,重慶港灣勞務公司法定代表人兼總經理職務。沒有建立本單位安全生產責任制,沒有組織制定并實施本單位安全生產教育和培訓計劃。其行為違反《中華人民共和國安全生產法》第十八條第一項和第三項的規定,對本次事故負有責任。根據《中華人民共和國安全生產法》第九十二條第一項的規定,建議區應急局給予其上一年年收入30%計人民幣2.572萬元罰款的行政處罰。根據《重慶市巴南區人民政府安全生產委員會關于加強當前安全生產工作的緊急通知》(巴南安委〔2019〕4號)的規定,建議由區住房城鄉建委主要負責人對沈善祥進行約談,并責成其在全區建筑安全生產大會上作反思性發言。
(四)江蘇啟安建設集團有限公司,作為生產經營單位,對左華林的安全生產教育培訓走形式、造假,也沒有考核,同時也沒有進行其安全技術交底,本單位的安全管理人員沒有根據外墻貼巖棉作業特點進行安全檢查,外墻貼巖棉作業施工協調和管理不到位,違反了《中華人民共和國安全生產法》第二十五條第一款和第四十三條第一款的規定,對本次事故負有責任。根據《中華人民共和國安全生產法》第一百零九條第一項和《安全生產行政處罰自由裁量適用規則》第十四條第一款第二項的規定,建議區應急局給予其人民幣30萬元罰款的行政處罰。
七、建議不予處罰處理的單位及人員
(一)區住房城鄉建委及相關監管人員。經調查,一是制定了安全檢查工作計劃,并按計劃進行了落實。二是開展了專項安全檢查及落實。三是召開了國慶期間建設安全工作大會,并對工作盡量安排落實。暫未發現作為行業主管部門在履行安全監管職責有失職、瀆職行為,在本次事故中不負有責任。按照《中共中央國務院關于推進安全生產領域改革發展的意見》(中發〔2016〕32號)、中共重慶市委重慶市人民政府關于推進安全生產領域改革發展的實施意見》(渝委發〔2017〕15號)關于盡職免責的規定,建議免于處理。
(二)魚洞街道辦事處及相關監管人員。經調查,魚洞街道辦事處制定了魚洞辦發〔2019〕28號《關于印發2019年安全生產監督檢查計劃的通知》,并按計劃進行了檢查落實。暫未發現作為屬地監管部門在履行安全監管職責有失職、瀆職行為,在本次事故中不負有責任。按照《中共中央國務院關于推進安全生產領域改革發展的意見》(中發〔2016〕32號)、中共重慶市委重慶市人民政府關于推進安全生產領域改革發展的實施意見》(渝委發〔2017〕15號)關于盡職免責的規定,建議免于處理。
(三)重慶新魯班工程監理有限公司及相關監管人員。經調查,暫未發現其明顯的違法違規行為,在本次事故中不負有責任。按照《中共中央國務院關于推進安全生產領域改革發展的意見》(中發〔2016〕32號)、中共重慶市委重慶市人民政府關于推進安全生產領域改革發展的實施意見》(渝委發〔2017〕15號)關于盡職免責的精神和《重慶市建設工程安全生產管理辦法》的相關規定,建議免于處理。
(四)重慶南錦聯房地產開發有限公司及相關監管人員。經調查,暫未發現其明顯的違法違規行為,在本次事故中不負有責任。按照《中共中央國務院關于推進安全生產領域改革發展的意見》(中發〔2016〕32號)、中共重慶市委重慶市人民政府關于推進安全生產領域改革發展的實施意見》(渝委發〔2017〕15號)關于盡職免責的精神和《重慶市建設工程安全生產管理辦法》的相關規定,建議免于處理。
八、事故防范措施建議
為了從此次事故中深刻吸取教訓,避免和預防類似事故再次發生,針對本次重慶港灣勞務公司和江蘇啟東建設集團有限公司的事故特點,建議如下:
(一)建全安全生產責任制,明確到各工作崗位、責任范圍和考核標準等內容,且嚴格督促落實。
(二)全員全方位對從業人員進行安全生產教育和培訓,考核合格后上崗,未經教育培訓合格和未安全技術交底,禁止上崗作業。安全教育培訓學習,禁止走形式和造假。
(三)加強現場安全管理,嚴格執行操作規程規定;加強施工現場安全隱患排查治理,發現隱患立即整改落實到位。。
(四)監督、教育從業人員正確佩戴和使用勞動防護用品,并嚴格執行制定的操作規程規定。
