廣東東莞市大朗鎮“4·17”一般車輛傷害事故調查報告
2020年4月17日21時10分許,東莞市地鐵1號線濕地公園站施工現場發生一起車輛傷害事故,桂AE9350號重型自卸貨車在倒車過程中碾壓到一名工人。事故共造成1人死亡,直接經濟損失126.5萬元。
事故發生后,市委市政府高度重視,市委常委、常務副市長喻麗君作出指示,要求認真總結分析原因,舉一反三,對類似問題進行專項整治,強化安全教育培訓,落實責任。
根據《中華人民共和國安全生產法》《生產安全事故報告和調查處理條例》(國務院令第493號)等有關法律法規規定,東莞市人民政府依法成立了由大朗鎮黨委副書記張玉成為組長,東莞市應急管理局、住建局和大朗鎮公安分局、應急管理分局、交通分局、交警大隊、監察室、總工會參加的東莞市大朗鎮“4·17”一般車輛傷害事故調查組(以下簡稱“事故調查組”),開展事故調查處理工作。
事故調查組按照“四不放過”和“科學嚴謹、依法依規、實事求是、注重實效”的原則,通過現場勘驗、查閱資料、調查取證、檢驗鑒定,查明了事故發生的經過、原因、人員傷亡和直接經濟損失情況,認定了事故性質和責任,提出了對有關責任單位及人員的處理建議,并針對事故原因及暴露的突出問題,提出了事故相關防范及整改措施。現將有關情況報告如下:
一、基本情況
(一)工程概況
東莞市軌道交通1號線是一條由東莞市西北至東南方向的市域快速干線,分兩期工程進行施工建設。其中一期工程起于望洪站,止于黃江中心站,線路總長57.99公里,共設車站24座,其中地下車站21座、高架車站3座。本起事故發生地位于地鐵1號線1302-4工區,即東莞市城市軌道交通1號線一期工程【松山湖站~大朗西站區間、大朗西站、大朗西站~大朗站區間、大朗站、大朗站~濕地公園站區間、濕地公園站】土建工程項目,由東莞市軌道一號線建設發展有限公司投資、中鐵十九局集團有限公司總承包、廣州軌道交通建設監理有限公司監理,項目造價為17700.62萬元。
地鐵1號線1302-4工區大朗濕地公園站目前進行地下連續墻施工,專業承包方:上海遠方基礎工程有限責任公司,工程進度為地下連續墻完成10幅,導墻完成30.9米,現場由專業承包方負責管理。
(二)事故單位基本情況
上海遠方基礎工程有限公司(以下簡稱為“上海遠方公司”),統一社會信用代碼:91310114133776670B,有限責任公司(自然人投資或控股的法人獨資),法定代表人:劉忠池,注冊資本:10000萬人民幣,成立日期:1994年08月29日,營業期限:1994年08月29日至2020年07月26日,2020年5月15日變更至2050年08月28日,住所:上海市嘉定區安亭鎮杭桂路1112號3層302室。經營范圍:地基與基礎建設工程專業施工,建筑工程,市政工程,鐵路、道路、隧道、橋梁工程,管道工程(除特種設備),水上交通管制建設工程專業施工,建筑裝飾裝修建設工程設計施工一體化,大型物件吊裝,建筑機械租賃(不得從事金融租賃),建筑專業設計,建筑專業建設工程設計,結構專業設計,巖土工程勘察,工程測量勘察,建材銷售,從事貨物進出口及技術進出口業務,建筑勞務分包;持有《建筑業企業資質證書》,注冊地址:上海市嘉定區安亭鎮黃渡博園路4800號C-5052室,注冊資本:3526.06萬人民幣,經濟性質:有限責任公司(國內合資),證書編號:,有效期:至2021年04月26日,資質類別及等級:市政公用工程施工總承包三級,地基基礎工程施工專業承包一級,發證機關:上海住房和城鄉建設管理委員會;持有《安全生產許可證》,編號:,單位地址:上海市嘉定區安亭鎮杭桂路1112號3層302室,經濟類型:有限責任公司(國內合資),許可范圍:建筑施工,有效期:2019年07月19日至2022年07月18日,發證機關:上海住房和城鄉建設管理委員會。
(三)其他參建各方基本情況
1.建設單位--東莞市軌道一號線建設發展有限公司(以下簡稱為“東莞軌道一號線公司”),統一社會信用代碼:91441900MA53EM2T5D,法定代表人:張慶文,成立日期:2019年06月28日,住所:廣東省東莞市東城街道莞樟路東城段199號1棟201室。
2.總承包單位--中鐵十九局集團有限公司(以下簡稱為“中鐵十九局”),統一社會信用代碼:91110000122027391R,法定代表人:楊哲峰,成立日期:2001年12月26日,住所:北京市北京經濟技術開發區榮華南路19號1號樓。中鐵十九局持有《建筑業企業資質證書》,有效期:2021年12月04日;另取得了《安全生產許可證》,有效期:2018年06月05日至2021年06月04日。
3.監理單位--廣州軌道交通建設監理有限公司(以下簡稱為“廣州軌道監理公司”),統一社會信用代碼:91440104797350015A,法定代表人:米晉生,成立日期:2006年12月13日,住所:廣州市越秀區環市西路204號大院自編四號樓2、3層(僅限辦公用途)。廣州軌道監理公司取得了房屋建筑工程監理甲級、市政公用工程監理甲級資質。
4.勞務承包單位--沈丘縣騰達建筑勞務有限公司(以下簡稱為“沈丘騰達公司”),統一社會信用代碼:91411624337196010Y,法定代表人:錢歡歡,成立日期:2015年04月03日,住所:河南省沈丘縣老城鎮西關行政村。
5.車輛租賃單位--深圳市鑫拓建筑有限公司(以下簡稱為“深圳鑫拓公司”),統一社會信用代碼:91440300MA5FG3QR1X,法定代表人:徐平山,成立日期:2019年01月23日,住所:深圳市龍崗區龍崗街道南聯社區滿京華喜悅里華庭二期12座902-A區03號。
(三)參建各方合同簽訂情況
1.總承包合同。東莞軌道一號線公司與中鐵十九局等承包人簽訂了《東莞市軌道交通1號線一期工程1302段施工總承包合同》。根據合同約定,中鐵十九局負責東莞市軌道交通1號線一期工程1302段部分工程的施工,具體施工范圍為:松山湖站~大朗西站區間;大朗西站;大朗西站~大朗站區間;大朗站~濕地公園站盾構區間、明挖區間、U型槽、路基范圍內前期工程、土建工程、機電安裝裝修工程、人防工程。本起事故發生地(濕地公園站)為中鐵十九局承包的施工范圍。
2.監理合同。東莞軌道一號線公司與廣州軌道監理公司簽訂了《東莞市城市軌道交通1號線一期工程土建施工監理1204標合同》,約定監理范圍為:大嶺山東站(不含)至濕地公園站(含)。
3.地下連續墻分包合同。中鐵十九局與上海遠方公司簽訂了《東莞市城市軌道交通1號線一期工程1302-4工區項目(濕地公園站)地下連續墻工程專業分包合同》,承包范圍為:濕地公園站地下連續墻工程及為完成該工程內容相關的一切工作(含缺陷修復等)。
4.分包單位勞務合同。上海遠方公司與沈丘騰達公司簽訂了《勞務施工承包合同》,雙方約定由沈丘騰達公司向上海遠方公司派遣勞務人員,上海遠方公司統一安排管理勞務人員進行地下連續墻施工范圍內的所有工作。
5.分包單位機械租賃合同。上海遠方公司與深圳鑫拓公司簽訂了《機械租賃合同》,合同約定上海遠方公司向深圳鑫拓公司租賃車輛,深圳鑫拓公司提供司機和短駁車1臺(即事故車輛),交由上海遠方公司安排調度,由深圳鑫拓公司負責維修保養。
(四)相關人員基本情況
1.李龍,男,漢族,51歲,中共黨員,上海遠方公司副總經理,分管廣東片區。
2.胡利,男,漢族,30歲,上海遠方公司濕地公園站項目現場負責人,經上海遠方公司授權,負責項目現場的全面工作。
3.張世舉,男,漢族,49歲,上海遠方公司濕地公園站項目安全員。
4.徐文才,男,漢族,33歲,身份證號:,深圳鑫拓公司員工,2020年2月27日被深圳鑫拓公司派遣至濕地公園站任職司機,負責駕駛事故車輛桂AE9350號重型自卸貨車,持有效機動車駕駛證,駕駛證號:,初次領證日期2010年10月12日,準駕類型:B2,有效期2016年10月12日至2026年10月12日。
5.王春德(死者),男,漢族,56歲,與沈丘騰達公司簽訂了《建筑工人勞動合同》,2020年2月25日被派遣至上海遠方公司,由后者安排在濕地公園站做導墻工人。
(五)事故車輛基本情況
事故車輛為豪沃牌重型自卸貨車,車牌桂AE9350號,車輛型號:,車輛識別代號:,發動機號:,使用性質:貨運,總質量25000KG,整備質量12460KG,核定載質量:12410KG,出廠日期:2015年02月06日,強制報廢期止:2030年03月02日,檢驗有限期止:2021年03月31日,保險終止期:2021年03月20日,機動車狀態:正常,機動車登記所有人:廣西鑫河物流有限責任公司,登記住址:南寧市良慶區順豐街一巷106號二樓。實際支配人為深圳鑫拓公司,系該公司2019年在深圳購買,未簽訂購買合同,2020年2月23日經中鐵十九局和廣州軌道監理公司驗收合格后進場作業。事故發生時,裝載淤泥。
二、事故發生經過、應急救援和現場處置及善后處理情況
(一)事故發生經過
2020年4月17日18時許,根據上海遠方公司的工程進度安排,由徐文才負責駕駛桂AE9350重型自卸貨車運載場內成槽機產生的淤泥去場區內的渣土池。21時10分許,徐文才駕駛桂AE9350重型自卸貨車裝載淤泥在東莞市地鐵1號線濕地公園站施工場地內機動車道路行駛,倒車時不慎撞到王春德,導致王春德送院搶救無效死亡。
(二)應急救援和現場處置情況
事故發生后,現場人員立即組織救援車輛將王春德送往大朗醫院,4月17日22時10分,到達大朗醫院急診科,經醫護人員診斷,王春德無生命體征,宣告臨床死亡。4月17日22時22分,大朗交警大隊接報事故,立即趕赴大朗醫院和事故現場,22時42分,到達大朗醫院,23時25分,到達事故現場并開展現場處置。4月17日23時40分,大朗應急管理分局接大朗交警大隊事故報告,4月18日0時02分,執法人員到達事故現場并開展勘察取證,同時向東莞市應急管理局報告事故。
經評估,本次事故應急處置及時、有效。
(三)善后處理情況
事故發生后,事故相關方積極對死者家屬安撫并進行協商,2020年4月22日達成協商并簽訂賠償協議,2020年4月25日死者遺體火化。目前,事故善后處理和賠償工作已全部完畢,未出現因此引發的社會不穩定情況。
三、人員傷亡和直接經濟損失
(一)人員傷亡情況
事故共造成1人死亡。死者王春德,男,漢族,56歲,身份證住址:,死亡原因創傷性失血、休克死亡。
(二)直接經濟損失
經統計核算,本起事故造成直接經濟損失約人民幣126.5萬元。
四、調查情況
(一)事故現場勘驗情況
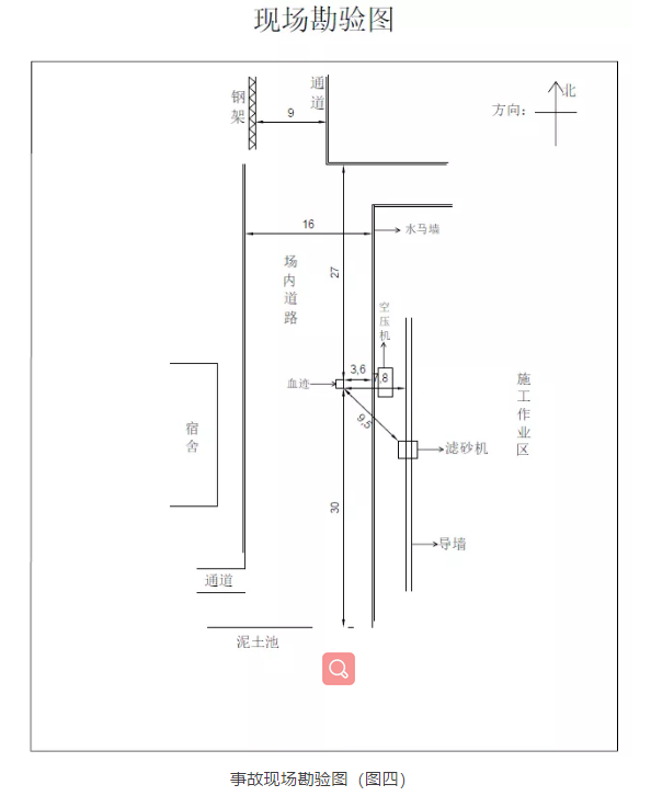
1.涉事車輛桂AE9350號重型自卸貨車(圖一),該車右后輪及相鄰地面可見明顯血跡(圖二)。

2.事故發生時,涉事車輛后方地面可見明顯血跡、反光衣、零星鐵質扎線、短木方、藍色膠管。事故發生現場血跡大小為105cm*95cm,血跡中心可見橘紅色反光衣,血跡旁可見一頂破損安全帽、一條短木方及零星鐵質扎線、藍色膠管(圖二)。施工現場有設置燈光照明,符合工作需求。

3.事故現場道路為水泥路面,施工作業區與事故道路以水馬墻相隔,事故道路東、西水馬墻相距16米,事故現場的血跡中心距東側水馬墻3.6米、距施工作業區導墻7.8米、距施工作業區濾沙機9.5米。血跡西側為宿舍區、南側路面為水泥地、北側為水馬墻,血跡中心距泥土池北側30米、北側水馬墻27米。血跡西北側為通道,通道東側為水馬墻、西側為鋼架,相隔9米。


(二)檢驗鑒定情況
事故發生后,交警部門委托東莞市公正稱重站對事故車輛進行稱重:總質量為38110KG,超載(核定載質量:12410KG)。事故調查組委托廣東正航司法鑒定中心和廣東康怡司法鑒定中心分別對徐文才血中乙醇含量、事故車輛安全技術狀況和王春德死亡原因進行檢驗鑒定。
1.徐文才血中乙醇含量鑒定結果:未檢出乙醇成份。
2.事故車輛安全狀況鑒定結果:桂AE9350號重型自卸貨車第一軸左、右側輪制動氣管均見開裂現象,不符合GB7258-2017《機動車運行安全技術條件》的相關規定;左前行燈、左前霧燈事故前功能失效,右前霧燈及后部兩側燈具事故前已缺失,不符合GB7258-2017《機動車運行安全技術條件》的相關規定。
3.王春德死亡原因鑒定結果:王春德符合大面積組織嚴重挫滅毀損引起創傷性失血、休克死亡;符合重型車輛碰撞后碾壓所致的成傷特點。
五、事故原因及性質
按照生產安全事故調查處理“四不放過”原則,為進一步查明事故的原因、性質和類型,事故調查組依法對有關人員進行調查詢問取證工作,對事故現場進行詳細勘查,收集相關材料,由于現場無監控錄像,無目擊者,根據相關人員筆錄和現場勘查基本查清了事故原因和性質。
(一)直接原因
1.司機徐文才駕駛的AE935重型自卸車在行駛過程中未察明車后情況和確認安全下倒車,導致其駕駛的車輛與王春德(死者)發生碰撞后碾壓,致人死亡。
2.王春德作業完成返回工地宿舍途中,擅自進入車輛行駛區域。(二)事故原因分析
1.事故發生當晚,上海遠方公司濕地公園站項目現場負責人胡利安排王春德和朱友林負責吊裝濾沙機,位置距離場內道路血跡中心約9.5米處。20時30分許,王春德和朱友林兩人吊裝完畢后,王春德無工作安排,可以撤離施工工地;由于濾沙機附近無監控錄像和目擊者,也無相關人員證明王春德在事故發生位置附近作業或逗留,而事故發生位置與宿舍區均位于濾沙機西側,因此推測王春德在返回宿舍區途中被車輛碰撞后碾壓。
2.事故發生時,因濾沙機施工區作業結束,人員已經撤離,司機徐文才駕駛桂AE9350號重型自卸貨車在未察明車輛后方是否安全的情況下倒車,王春德當時處于車輛倒車視野盲區,致使車輛與人員發生碰撞,導致該事故發生。

(三)間接原因
上海遠方基礎工程有限公司作為濕地公園站地下連續墻工程專業承包方,安全生產主體責任不落實,一是生產安全事故隱患排查治理工作不落實,未按照中鐵十九局制定的《廠內車輛行駛及人車分流管理制度》要求,督促施工人員嚴格遵守場內人流車流管理制度,并采取相關措施,及時消除施工作業人員擅自進入車輛行駛道路的事故隱患;二是安全生產管理工作不落實,未落實中鐵十九局制定的《車輛安全管理制度》,未做好車輛日常檢查維修保養,保證車輛性能正常,導致事故車輛左前行燈、左前霧燈事故前功能失效,右前霧燈及后部兩側燈具缺失的問題長期存在;三是安全生產操作規程不落實,未按照中鐵十九局制定的《車輛安全管理制度》內關于車輛的管理要求,做好施工現場車輛安全管控,事故車輛倒車時,未指派專人現場指揮。
(四)事故性質
經調查認定,東莞市大朗鎮“4·17”一般車輛傷害事故是一起由于安全生產主體責任不落實,安全管理不到位而引起的一般生產安全責任事故。
五、相關部門和企業履職情況
(一)相關部門履職情況
1.東莞市住房和城鄉建設局。該局于2019年12月30日介入東莞濕地公園站的施工質量安全監督,截至2020年4月22日,對該項目共進行了監督交底(告知)、日常檢查、專項檢查等8次監督檢查。執法人員按照國家、省、市有關法律法規、質量安全、文明施工相關管理規定,對施工單位和監理單位的安全行為、現場實體安全隱患、施工工序、現場質量情況以及檢驗批驗收情況進行了質量安全檢查。2020年以來,該局貫徹落實重要指示精神和工作部署,迅速下發多項通知和工作方案,要求企業自查自糾、閉環管理,有效壓實企業安全生產主體責任;積極主動開展督導檢查、專項檢查、日常巡查等整治工作,累計共出動執法人員5262人次、檢查工地1880個,發出限期整改通知書338份,發出停工通知書219份、監理單位限期整改通知書150份,發出扣分通知書339份,共扣2173分。
2.東莞市軌道交通局。東莞市軌道交通1號線建設現場指揮部設在該局,負責協調及督促屬地、相關單位及企業做好1號線工程設計、征地拆遷、合同管理、施工管理、投資進度、質量安全等工作。自2019年1號線開工以來,該局作為1號線一期工程的實施機構,積極履行現場指揮部的職能,組織召開專門針對1號線建設工程安全生產會議4次,及時傳達國家、省、市有關安全生產會議和文件精神,并多次組織相關人員到施工現場進行安全生產檢查。
(二)相關企業履職情況
1.東莞市軌道一號線建設發展有限公司。東莞市軌道交通1號線1302-4工區工程項目于2019年12月30日辦理工程安全監督登記及交底,建設單位、監理單位、施工單位按照合同及相關法律、法規要求進行施工過程安全監管。建設單位主持召開了第一次工地例會,公司各部門及各參建單位對施工單位進行業務交底,開工前組織各參建單位進行安全談話;截止到4月17日,建設單位組織安全月檢及各項專項安全檢查15次,參加工地監理例會15次,組織召開全線施工安全月度例會9次,同時根據現場情況不定期進行日常安全巡查;2020年春節后復工復產以來,建設單位認真貫徹落實省、市關于安全復工的重要指示精神,迅速下發多項通知和管理辦法、管理要求,積極開展全線各工區的復工安全檢查、防疫專項檢查、日常巡查等整治工作。
2.中鐵十九局集團有限公司。作為涉事項目段的施工總承包單位,建立健全安全生產責任制,施工項目部管理人員均按要求持證上崗,設立安全生產管理機構,按施工人數和規模配備了專職安全管理人員和技術指導人員,組織制定安全生產規章制度和操作規程,組織制定安全教育培訓計劃并實施,定期檢查施工現場的安全生產情況,保證安全生產資金的投入。中鐵十九局將連續墻施工工程分包給具備相應施工資質的專業承包單位上海遠方公司,并在承包合同中明確了各自的安全生產管理職責,對施工作業人員進行崗前安全生產三級教育培訓并組織了書面考核,有發放勞動防護用品;有建立《廠內車輛行駛及人車分流管理制度》對人員安全管理和車輛行駛安全管理作出規定,實施場內人車分流,并對施工作業人員進行了相關制度的安全技術交底,由場內唯一施工方上海遠方公司負責督促作業人員落實制度;有建立《車輛安全管理制度》,對車輛的管理、性能和駕駛員操作規范作出相應的規定,并對駕駛員進行技術交底,由車輛及駕駛員的作業指派和安全管理單位上海遠方公司負責落實規定。經調查認定,中鐵十九局已履行總承包單位的管理職責。
3.廣州軌道交通建設監理有限公司,作為東莞市城市軌道交通1號線一期工程土建施工監理1204標(大嶺山東站(不含)至濕地公園站(含)四站四區間監理單位,建立監理規劃,共開展工程例會15次,監理通知單下發5份,已經監督施工單位對場地內機動車輛進行安全技術交底和安全教育。按相關要求,廣州軌道交通建設監理有限公司負責現場安全管理,檢查和監督前期工程施工單位消除安全隱患。
4.上海遠方基礎工程有限公司。作為濕地公園站地下連續墻工程專業承包方,安全生產主體責任不落實,一是生產安全事故隱患排查治理工作不落實,未按照中鐵十九局制定的《廠內車輛行駛及人車分流管理制度》要求,督促施工人員嚴格遵守場內人流車流管理制度,并采取相關措施,及時消除施工作業人員擅自進入車輛行駛道路的事故隱患;二是安全生產管理工作不落實,未落實中鐵十九局制定的《車輛安全管理制度》,未做好車輛日常檢查維修保養,保證車輛性能正常;三是安全生產操作規程不落實,未按照中鐵十九局制定的《車輛安全管理制度》要求,做好施工現場車輛安全管控,事故車輛倒車時,未指派專人現場指揮。
六、事故責任認定及處理建議
根據《中華人民共和國安全生產法》和《生產安全事故報告和調查處理條例》(國務院令第493號)等有關規定,事故調查組對東莞市大朗鎮“4·17”一般車輛傷害事故作出了責任認定,并對有關單位和人員提出了處理建議。
(一)對相關企業的責任認定和處理建議
上海遠方基礎工程有限公司安全生產主體責任不落實,對事故發生負有責任。根據《中華人民共和國安全生產法》和《生產安全事故報告和調查處理條例》(國務院令第493號)的有關規定,建議由應急管理部門對其實施行政處罰。
(二)對相關人員的責任認定和處理建議
1.胡利,作為上海遠方公司濕地公園站地下連續墻施工項目負責人,受企業法定人代表人委托對工程項目施工過程全面負責的項目管理者,是建筑施工企業法定代表人在工程項目上的代表人,對工程項目施工負有全面管理的責任。胡利安全管理不到位,督促、檢查本單位的安全生產工作不力,在倒運淤泥作業時未安排專人進行現場監護,未能及時排查消除事故隱患,對事故的發生負有責任,建議由應急管理部門依照相關法律法規對其實施行政處罰。
2.徐文才,作為深圳鑫拓公司的派遣司機,事故車輛的駕駛員,安全意識淡薄,違反《場內機動車輛安全技術交底》的規定,在無專人指揮、未察明車輛后方情況和確認安全下倒車,駕駛不符合技術標準的車輛碾壓他人,致人死亡,對事故的發生負有責任。徐文才涉嫌重大責任事故罪,建議移交司法機關處理。
3.王春德,安全意識不足,未充分認識到周圍存在的安全風險,擅自進入車輛行駛區域,未能及時避開險情,被正在倒車的事故車輛碾壓致死,對事故的發生負有責任。鑒于其已經在該次事故中死亡,建議不再追究其責任。
4.李龍,對分管片區項目的安全管理工作失察,落實安全管理制度督促不力,建議由上海遠方公司按照公司規定內部處理,并進行黨紀處理。
5.張世舉,未履行項目安全員的安全管理職責,現場監督檢查工作不力,未能及時發現并制止施工工人違章進入行車區域,建議上海遠方公司免除其安全管理職務,按照公司相關規定進行處理。
(三)其他處理建議
1.建議由市安監站對上海遠方公司和廣州軌道監理公司開展事故警示約談,督促進一步落實安全生產主體責任。
2.桂AE9350號重型自卸貨車部分制動氣管、照明、信號裝置不符合GB7258-2017《機動車運行安全技術條件》的相關規定,建議深圳鑫拓公司對車輛進行維修保養,經驗收合格后方可投入使用。
3.事故涉及法律責任,如構成民事侵權等責任,建議當事各方通過法律途徑解決。
七、事故防范和整改措施
為認真貫徹執行中央駐粵及省屬建設施工企業安全生產會議和全市建筑施工領域安全生產工作會議精神,深刻汲取事故教訓,防范化解建設施工領域突出安全風險,提出以下事故防范工作建議:
(一)建設工程相關單位要深刻汲取事故教訓,引以為戒,舉一反三,切實履行企業安全生產主體責任,建立健全各種規章制度和操作規程,嚴格依法依規生產經營,強化自我約束、持續改進的企業安全生產長效機制。要健全完善監管機制,提高建設施工安全綜合治理水平。要迅速組織開展排查整治行動,防范化解建設施工領域突出安全風險。要強化事故預防措施,定期開展風險評估和危害辨識,針對工藝、設備、場所和崗位建立分級管控制度,落實安全警示工作。嚴格執行工程安全、質量管理制度,嚴格實施建筑工程施工與驗收工作程序,加強對建設項目安全工作的監督、檢查。
(二)總承包方要加強對承包單位的安全生產工作的統一協調、管理,強化分包管理,嚴禁以包代管、違法分包和轉包,重點防范施工現場安全管理不到位、安全防護措施不到位、施工作業行為不規范等突出問題,有效遏制和減少事故的發生。
(三)施工單位要嚴格落實安全生產主體責任,嚴防事故再次發生。一是要強化從業人員的安全教育,保證從業人員具備必要的安全生產知識,確保安全技術交底取得成效,切實提高從業人員風險防范和自我保護能力,掌握本崗位的安全操作技能,熟悉場內行車區域和工作區域的劃分;二是要積極開展隱患排查治理工作,加強對施工作業現場的安全檢查力度,及時發現施工現場存在的安全隱患并采取有效措施、落實專人、明確時限進行整改,確保安全作業;三是要切實加強施工作業現場的安全監管和巡查力度,對現場涉及到危險作業、交叉作業的,要安排專人進行監護,要及時發現并制止糾正現場作業人員的危險違章違規作業行為。
(四)監理單位要切實履行監理責任,按照法律法規和工程建設強制性標準,加強對工程項目施工階段的安全監理,在實施監理過程中,嚴格審查施工單位相關資料,發現存在事故隱患的,應當及時督促施工單位整改到位。
