硬科普:安全疏散距離一文廓清!
1. 廠房內任一點至最近安全出口的直線距離(m)不應大于下表的規定。


1)建筑內開向敞開式外廊的房間疏散門至最近安全出口的直線距離可按上表的規定增加5m。

2)直通疏散走道的房間疏散門至最近敞開樓梯間的直線距離,當房間位于兩個樓梯間之間時,應按上表的規定減少5m;當房間位于袋形走道兩側或盡端時,應按上表的規定減少2m。



1)步行街兩側建筑內的疏散樓梯應靠外墻設置并宜直通室外,確有困難時,可在首層直接通至步行街;首層商鋪的疏散門可直接通至步行街,步行街內任一點到達最近室外安全地點的步行距離不應大于60m。步行街兩側建筑二層及以上各層商鋪的疏散門至該層最近疏散樓梯口或其他安全出口的直線距離不應大于37.5m。

1)開向敞開式外廊的戶門至最近安全出口的最大直線距離可按上表的規定增加5m。
2)直通疏散走道的戶門至最近敞開樓梯間的直線距離,當戶門位于兩個樓梯間之間時,應按上表的規定減少5m;當戶門位于袋形走道兩側或盡端時,應按上表的規定減少2m。
3)住宅建筑內全部設置自動噴水滅火系統時,其安全疏散距離可按上表的規定增加25%。
4)躍廊式住宅的戶門至最近安全出口的距離,應從戶門算起,小樓梯的一段距離可按其水平投影長度的1.50倍計算。
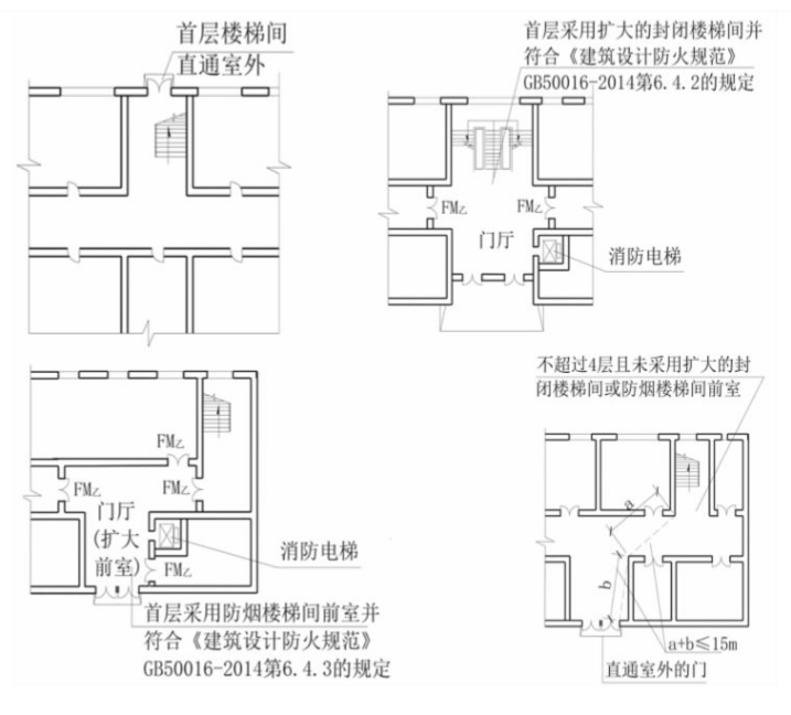
2. 樓梯間應在首層直通室外,或在首層采用擴大的封閉樓梯間或防煙樓梯間前室。層數不超過4層時,可將直通室外的門設置在離樓梯間不大于15m處。
3. 戶內任一點至直通疏散走道的戶門的直線距離不應大于上表規定的袋形走道兩側或盡端的疏散門至最近安全出口的最大直線距離。
來源:中國消防
