3、對于銹蝕嚴重、彎曲、變形的鋼管和存在滑絲、厚度不足的扣件均應拒絕進場。4、鋼管腳手架應選用符合要求的鋼管,(具體壁厚以專項方案為準),鋼管上嚴禁打孔,扣件、鋼管應有產品質量合格證和質量檢驗報告。6、腳手架鋼管顏色必須按公司CIS要求立桿橫桿采用黃油漆,剪刀撐、底排立桿及需警示的部位采用黃黑油漆。(黃黑油漆隔40cm刷一道,擋腳板隔20cm刷1道)

1、鋼管腳手架基礎平整夯實,砼硬化,立桿垂直放在金屬底座、砼地坪、砼預制塊上。2、立桿基礎外側設置截面不小于20×20cm的排水溝,并在外側設80cm寬以上砼路面(若無積水可視實際情況而定)。

3、落地式腳手架必須設置縱、橫向掃地桿,掃地桿應設置為縱上橫下,(橫向掃地桿用直角扣件固定在緊靠縱向掃地桿下方的立桿上)。距底座上皮不大于200mm,縱橫向掃地桿外露端頭伸出立桿凈長度應一致(不小于100mm)。
1.腳手架步距首步高度不大于2m,以上每步不大于1.8m,立桿縱距不大于1.8m,橫距不大于1.5m,橫距宜為0.85m或1.05m。如搭設高度超過25m則須采用雙立桿或縮小間距搭設(雙立桿中的副立桿的高度不應低于3步,鋼管長度不應小于6m,上部單立桿高度不得超過20m)。超過50m應進行專門設計計算并經專家論證。


2.立桿接長除頂層頂步可采用搭接外(搭接長度不小于1米,采用3個旋轉扣件固定,端部扣件蓋板邊緣至桿端距離不應小于100mm),其余各層必須采用對接扣件連接(立桿上的對接扣件應交錯布置:兩根相鄰立桿的接頭不應設置在同步內,同步內隔一根立桿的兩個相隔接頭在高度方向錯開的距離不宜小于500mm;各接頭中心至主節點的距離不宜大于步距的1/3h);

3.當立桿基礎不在同一高度上時,必須將高處的縱向掃地桿向低處延長兩跨與立桿固定,高低差不應大于1m。靠邊坡上方的立桿軸線到邊坡的距離不應小于500mm。

4、 立桿頂端宜高出女兒墻上皮1m,高出檐口上皮1.5m。雙立桿中的副立桿的高度不應低于3步,鋼管長度不應小于6m。5、縱向水平桿應采用對接扣件連接,其長度不宜小于3跨。橫向水平桿(小橫桿)端頭伸出立桿凈長不小于100mm,外露長度應一致。6、安全網應使用不小于18#鉛絲進行綁扎,張掛嚴密,嚴禁使用扎絲綁扎。1、 鋼管外架拉結點應剛性拉結(剛性拉結可用預埋鋼管可承受拉力及壓力)。拉結點應保證牢固,防止其移動變形,與腳手架連接的一端應下斜連接,且盡量設置在離主節點距離不大于300mm處。連墻件表面刷紅色油漆。


2、拉結點應從底層第一步縱向水平桿處開始設置,按2步3跨設置一道連墻件。(腳手架與建筑物按水平方向不大于7m,垂直方向不大于4m設一拉結點。)拉結點在轉角和頂部處加密,即在轉角1m以內范圍按垂直方向不大于4m設一拉結點,頂部80cm以內范圍按水平方向不大于7m設一拉結點。3、外墻裝飾階段拉結點也須滿足要求,若因施工需要需除去原拉結點時,必須重新補設可靠、有效的臨時拉結,以確保外架安全可靠。2、每道剪刀撐寬度不應小于4跨,且不應小于6m,斜桿與地面的傾斜角宜45~60度之間(宜優先選用45度)。

3、剪刀撐桿件的接長應采用搭接,搭接長度不小于1m,且不少于3個扣件緊固,搭`接處端部超出扣件不少于100mm。



<五>腳手架、防護欄桿及架體內封閉
1、腳手架上腳手片宜層層滿鋪,鋪穩,離開墻面120~150mm。2、滿鋪層腳手片必須垂直墻面橫向鋪設,滿鋪到位,不留空位,不能滿鋪處必須采取有效防護措施。3、腳手片須用不細于18#鉛絲雙股并聯綁扎不少于4點,要求綁扎牢固,交接處平整,無探頭板。腳手片完好無損,破損的要及時更換。

4、腳手架外側自第二步起底部設180mm高踢腳桿(板),在高0.6m與1.2m處各設同材質的防護欄桿一道,腳手架內側形成臨邊的,按腳手架外側防護做法設置。5、腳手架的內立桿距墻體凈距不大于200mm,如大于200mm用鋼管填芯并鋪設平整牢固的站人片。6、施工層以下外架每隔3步以及底步應用密目網或腳手片進行封閉(3步一封隔層全封閉隔離)。7、外架應在每幢樓設置防雷接地,并設置“已接地”標牌

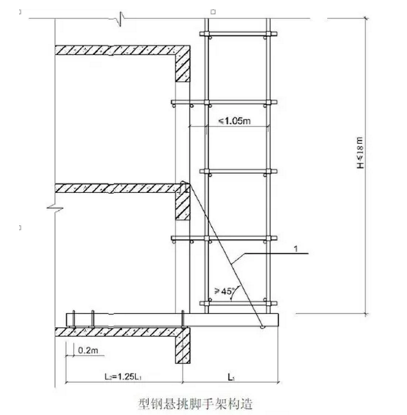
1、懸挑式腳手架必須編制專項施工方案。方案應有設計計算書(包括對架體整體穩定性、支撐桿件的受力計算),有針對性較強的、較具體的搭設拆卸方案和安全技術措施,并畫出平面圖、立面圖以及不同節點詳圖。2、專項施工方案包括設計計算書必須經企業技術負責人審批簽字蓋章后方可施工。1、挑架步距不得大于1.8m,橫距不大于1.05m,縱距不大于1.5m。2、型鋼懸挑梁宜采用雙軸對稱截面的型鋼(工字鋼)。


3、挑架每段容許搭設高度應小于等于18m(省標)。4、架體與建筑結構進行剛性拉結按水平方向小于6m,垂直方向等于層高設一拉結點(2步3跨具體按方案施工),架體邊緣及轉角處1m范圍內必須設拉結點。5、在懸挑梁上表面距外端頭100mm和900mm處焊上兩根100mm長直徑25mm的短鋼筋以固定立桿,并在挑梁端部焊圓鋼拉環進行固定或工字鋼中間割洞在鋼絲繩上增加保護扣。6、每道懸挑梁均應加設斜拉鋼絲繩,鋼絲繩繩卡不得小于3個,型號與鋼絲繩匹配,繩卡距離6~8d,尾部設30-50cm安全灣,留尾10cm,活鞍朝主受力繩一邊,繩卡方向一致。

7、預埋圓鋼拉環直徑不小于20mm,一個拉環不得同時拉設超過1道以上鋼絲繩,拉環不宜預埋在懸挑板上(如埋設在懸挑板上砼強度應達到100%,拉環部位應進行加強),挑梁預埋螺桿直徑不小于16mm,落于結構上的錨固段應大于懸挑段的1.25倍。型鋼截面高度不小于160mm,采用3道壓板,尾部兩道壓板距離為200mm,應采用雙螺帽,絲扣外露不小于3絲,尾部工字鋼距螺桿凈距不小于200mm。壓板與型鋼間隙應用鋼楔或硬木楔楔緊。8、懸挑架最底層應滿鋪木板進行封閉,立桿內側設置180mm高踢腳板。





8、腳手架搭設與結構施工應同步,外架應高于作業層但不得超過2步以上。嚴禁外墻無架施工。作業層腳手片必須滿鋪。9、腳手架荷載不得超過規定,施工荷載堆放應均勻,嚴禁腳手片堆放在外架上。大型廣告牌掛設在外架上應有單獨方案及加固措施。10、 架子實行3步一驗,驗收后必須掛驗收合格牌。 11、塔吊、人貨梯、物料提升機等機械設備的附著裝置嚴禁與外架相連。塔吊通道嚴禁兩端固定。12、高度超過24m的外架應設置水平挑網每隔10m設置一道。

1、模板工程施工前應進行專項設計,編制專項施工方案,并經審批后方可實施。2、高度超過8m,或跨度超過18m,或施工總荷載大于15KN/m2,或集中線荷載大于20KN/m2的模板支架應組織專家論證。(梁截面大于0.6m2一般超過1.5m*0.4m;板厚大于400mm)且不得使用鋼管扣件式腳手架應采用盤扣、門架或碗扣式腳手架。1、支模架基礎遇軟弱地基應進行處理,確保不沉降。懸挑板做基礎強度應達到100%且支模架應保留兩層不拆除。2、嚴禁支模架與外架相連,模板支架必須設置縱橫向掃地桿,支模架嚴禁純扣件受力遇有洞口應加型鋼過渡。當采用梁底設置立桿的支撐方式時,宜采用可調托座直接傳力,可調托座與鋼管交接處應設置橫向水平桿,托座頂距離水平桿的高度不應大于300mm,梁底立桿應按梁寬均勻設置,其偏差不應大于25mm。

4、在立桿底部或頂部設置可調托座時,其調節螺桿的伸縮長度不應大于200mm。

5、立桿的縱橫桿距離不應大于1.2m,步距不大于1.8m。對需專家論證的高大支模架高度超過8m,或跨度超過18m,或施工總荷載大于15KN/m2,集中線荷載大于20KN/m2的模板支架,杭州地區嚴禁使用鋼管支模架須按杭建工發《 2015 》55號文及杭建協《 2015 》10號文的要求使用門式、碗扣式、承插型盤扣式工具式支架。梁高大于500mm必須采用穿墻螺桿加固。6、立桿接長必須采用對接扣件接長。立桿接長時,同步內隔一根立桿的兩個相隔接頭在高度方向錯開的距離不宜小于500mm,各接頭中心至主節點的距離不宜大于步距的1/3。7、主節點處必須設置一根橫向水平桿,用直角扣件扣接且嚴禁拆除。主節點兩個直角扣件的中心距不應大于150mm。
8、每步的縱、橫向水平桿應雙向拉通。模板支架嚴禁用方木代替鋼管(樓梯位置較多)。9、模板支架高度超過4m應設置剪刀撐。(四周滿布剪刀撐,中間每隔4排立桿設置一道豎向剪刀撐,由底至頂連續設置,四邊與中間每隔4排立桿從頂層開始向下每隔2步設置一道水平剪刀撐)。10、模板支架高度超過4m時,柱、墻板與梁板混凝土應分兩次澆筑。模板支架應與施工區域內及周邊已具備一定強度的構件(墻、柱等)通過連墻件連接,以抵抗水平荷載的影響。11、斜梁、斜板結構的模板支架搭設時,應采取設置拋撐,或設置連墻件與周邊構件連接,以抵抗水平荷載的影響。12、扣件的螺栓擰緊扭力矩應為40N·m—65N·m13.電梯井支模架應采用槽鋼焊接,(如采用扣件鋼管支模架,每層必須對鋼管扣件進行檢查加固,并在電梯井內隔5-6層預設型鋼進行全封閉隔離)。圖片供參考。


1、外腳手架吊物卸料平臺和井架卸料平臺應有單獨的設計計算書和搭設方案。2、卸料平臺應與腳手架、井架斷開,有單獨的支撐系統,嚴禁與腳手架連接。卸料平臺應采用不小于40mm厚的木板統一鋪設,并設置防滑條。平臺兩側必須封閉刷黃黑油漆。建議使用2.5mm鋼板(做法詳見08版省標化P79頁)。

4、外腳手架吊物卸料平臺應制作定型化、工具化,通過4根匹配的鋼絲索與預埋的鋼筋吊環可靠拉接,自成受力系統,預埋的鋼筋吊環要保證錨固長度,混凝土強度應達到100%,嚴禁采用鋼管斜撐在外腳手架上,鋼絲繩與吊環可以用卸甲(卸扣)進行連接(JGJ80-91)。5、卸料平臺與樓層面之間應設置安全可靠的安全通道;限載標識應標明限載1噸,3米鋼管不超過85根,6米鋼管不超過42根,扣件不超過1000套。懸挑式卸料平臺下方6m*6m范圍應設置警戒區用鋼管刷黃黑油漆并掛警示標語。6、懸挑式卸料平臺型鋼壓板應設置3道,鋼絲繩拉設等應符合挑架要求,擱置端長度應大于2m,預埋吊環直徑不小于20mm,預埋螺桿直徑不小于16mm,平臺宜采用2.5mm鋼板,如采用模板厚度應不小于40mm。7、落地式卸料平臺高度不能超過8m,鋼管應刷黃油漆。卸料平臺與樓層應設置平整牢固的通道。8、移動操作平臺高度不得超過5m,面積不大于10m2。工人在高于2m處作業必須系好安全帶。9、裝設輪子的移動式操作平臺,輪子與平臺的接合處應牢固可靠,立柱底端離地面不得超過80mm。輪子應用剎車固定防止移動。
